Laboratorio in affitto

Genova, Via borzoli - Borzoli
Informazioni in agenzia
9 locali 9 locali
1925 Mq 1925 Mq
2 bagni 2 bagni

Laboratorio in affitto

Genova, Via borzoli - Borzoli

Descrizione annuncio

GENOVA, VIA BORZOLI:

LABORATORIO DI AMPIE DIMENSIONI IN AFFITTO VIA BORZOLI
1925 MQ TOTALI COMPLETAMENTE CARRABILE SOLUZIONE UNICA.


In Via Borzoli, in posizione strategica e ottimamente collegata, proponiamo in affitto complesso laboratoriale di grande prestigio e funzionalità, con una superficie complessiva di 1.925 mq, distribuita su due piani operativi più piano tetto carrabile e area operativa, tutti collegati tramite comoda rampa di accesso.


Un immobile pensato per chi cerca spazi generosi, accessibilità totale e massima versatilità operativa.


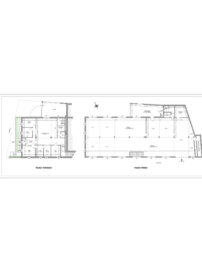
Distribuzione degli spazi

• Piano Terra 228,80 mq di superficie coperta

150 mq di superficie scoperta

• Accesso diretto da piano strada • 7 8 posti auto privati

• Presenza di zona ristoro • 2 servizi igienici, di cui uno con spogliatoio

• Impianto di climatizzazione caldo freddo e caloriferi

• Primo Piano 658,50 mq di superficie coperta

• Completamente carrabile tramite rampa

• Ambienti ampi, luminosi e modulabili

• 1 servizio igienico

• Piano Tetto 183 mq di laboratorio 706 mq di terrazzo carrabile

• Doppio servizio igienico con antibagno

• Ampissima area esterna con elevata disponibilità di posti auto e furgoni

• Accesso carrabile diretto tramite rampa


Caratteristiche distintive


Tutti i piani carrabili (piano terra da strada, primo piano e tetto tramite rampa)

Spazi esterni eccezionali e sfruttabili

Impianti di climatizzazione caldo freddo su piano terra e piano tetto

Servizi igienici completi e ben distribuiti

Ideale per attività produttive, artigianali, logistiche, studi tecnici o sede aziendale
Un immobile che unisce operatività, accessibilità e rappresentanza, perfetto per aziende che necessitano di grandi superfici, facilità di movimentazione e possibilità di parcheggio senza rinunciare alla comodità della posizione.


Contattaci per maggiori informazioni o per organizzare una visita: una soluzione di questo livello è davvero rara sul mercato.

Mostra tutto

Nelle vicinanze

Trasporto pubblico Trasporto pubblico
Brin
Brin
2,5 Km
Genova Borzoli
Genova Borzoli
120 m
stazione di Genova Rivarolo
stazione di Genova Rivarolo
2,0 Km
Borzoli 8 / Cimitero
Borzoli 8 / Cimitero
250 m
Borzoli 7 / Cimitero
Borzoli 7 / Cimitero
250 m
Ricariche auto elettriche Ricariche auto elettriche
Genova Chiaravagna | EnelX
1,1 Km
EnelX Sant'Elia Genova
1,1 Km
Genova Minoletti | EnelX
1,5 Km
Eneldrive N.S. Assunta
1,8 Km
Axpo - Albareto
1,9 Km
Scuole Scuole
Scuola Edile Genovese
320 m
Scuola Primaria 2 Giugno
840 m
Scuola dell'Infanzia Arcobaleno
840 m
Scuola Secondaria
870 m
Istituto Comprensivo di Borzoli
890 m
Farmacia Farmacia
San Martino
1,2 Km
Farmacia
1,3 Km
Farmacia San Giovanni Battista
1,4 Km
Farmacia San Nicola
1,4 Km
Parafarmacia
1,5 Km
Ospedali Ospedali
Ospedale Padre Antero Micone
1,3 Km
Supermercati Supermercati
Di Più
340 m
Il forno di Felice - Minimarket
510 m
Punto Simply
710 m
PAM
1,1 Km
Ekom
1,3 Km
Negozi Negozi
Da u Tappe
1,2 Km
Negozi
1,4 Km
Simonitti
1,6 Km
Battaglia
1,8 Km
Magic Games Party
1,9 Km
Bar Bar
Baobab Bar
280 m
Bar
290 m
Bar Jolly
730 m
Bar Alfa
1,2 Km
Bar Spritz Santacruz
1,2 Km
Ristoranti Ristoranti
Bar Trattoria Glicine
330 m
Ristorante Lo Scabeccio
1,2 Km
PizzArt
1,2 Km
Mattelin
1,3 Km
Trattoria La Baracchetta
1,3 Km
Mostra tutto

Caratteristiche

Rif.:
61162805
Piano:
Terra di 2
Totale piani:
2
Posti auto:
7
Condizionamento:
Autonomo
Ascensore:
No
Mostra tutto
Prezzo Prezzo
Informazioni in agenzia
Spese annue Spese annue
€ 0

Classe Energetica

G
G
G
G
G
G
G
G
G
Anno di costruzione:
1950
Riscaldamento:
Autonomo
Tipo impianto:
A radiatori
Tipo alimentazione:
Metano

Ti interessa visionare l'immobile?

Fissa un appuntamento  Fissa un appuntamento

Richiedi informazioni

Clicca su Leggi per aprire l'informativa
* Questi campi sono obbligatori
Affiliato
Immobiliare Impresa Snc
Lung. Di Pegli, 177/179 R 16121 Genova (GE)

Il nostro staff


  • Fabio Guidetti
    Collaboratore

  • Luca Malachina
    Collaboratore

  • Anna Aquaroli
    Coordinatrice

  • Mattia Santoro
    Affiliato
Lung. Di Pegli, 177/179 R 16121 Genova (GE)
Zona: Lungomare di Pegli
Mostra su mappa
Orari: Dal lunedì al venerdì dalle 08:30 alle 12:30 e dalle 15:00 alle 20:00 e sabato dalle 9:00 alle 12:30 e dalle 15:00 alle 18:00
Affiliato
Immobiliare Impresa Snc
Lung. Di Pegli, 177/179 R 16121 Genova (GE)

2026 Tecnocasa Franchising S.p.A. - P. IVA 08365160152 - Via Monte Bianco 60/A 20089 Rozzano (MI). Ogni agenzia ha un proprio titolare ed è autonoma. Privacy policy | Policy utilizzo | Cookie policy