Capannone in vendita

Campo Ligure, Via Luigi Bosco
€ 650.000
Prezzo aggiornato
5 locali 5 locali
800 Mq 800 Mq

Capannone in vendita

Campo Ligure, Via Luigi Bosco

Descrizione annuncio

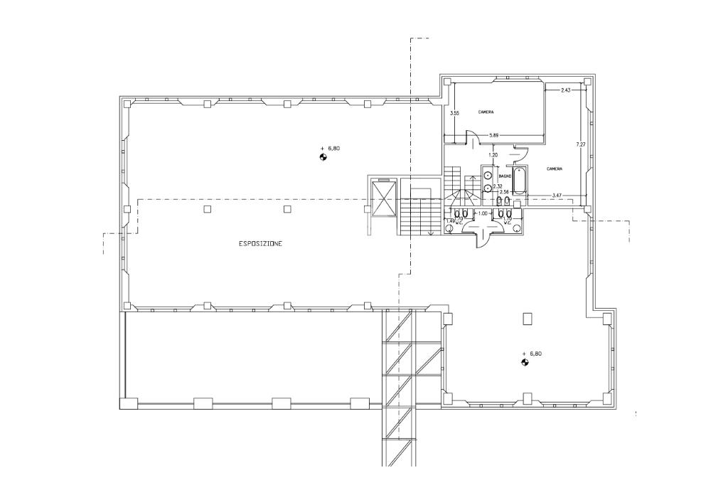
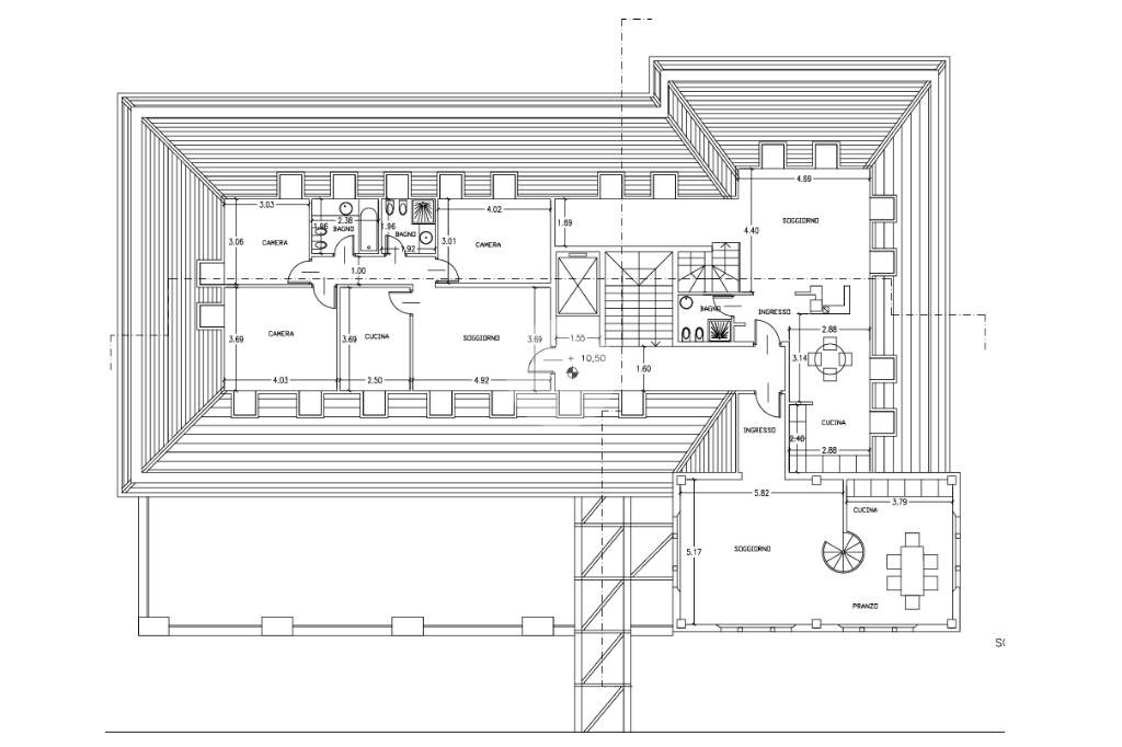
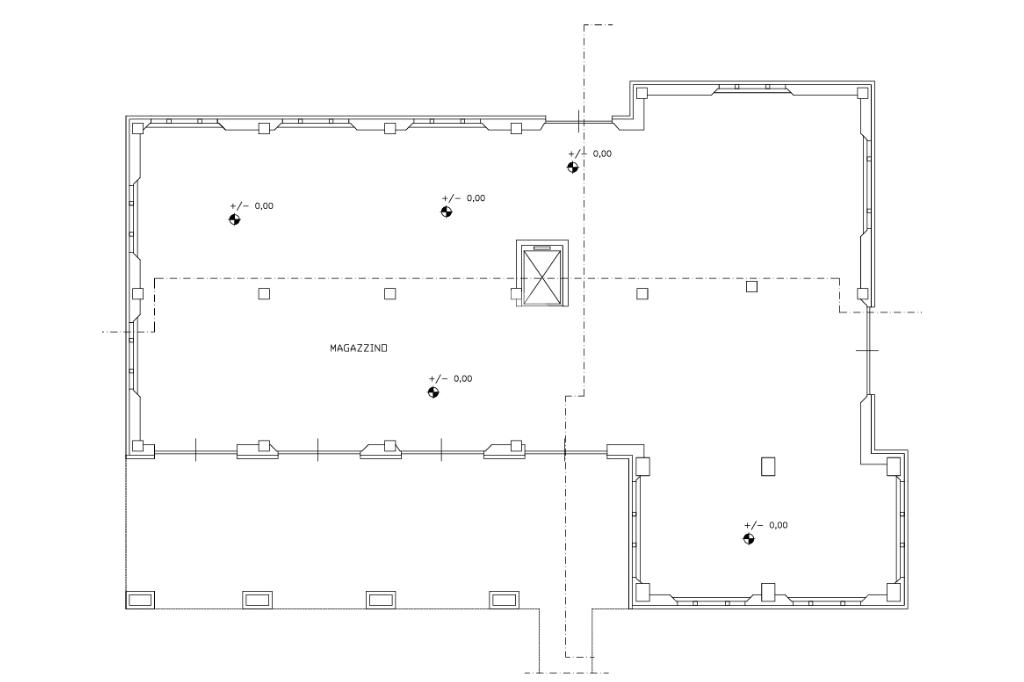
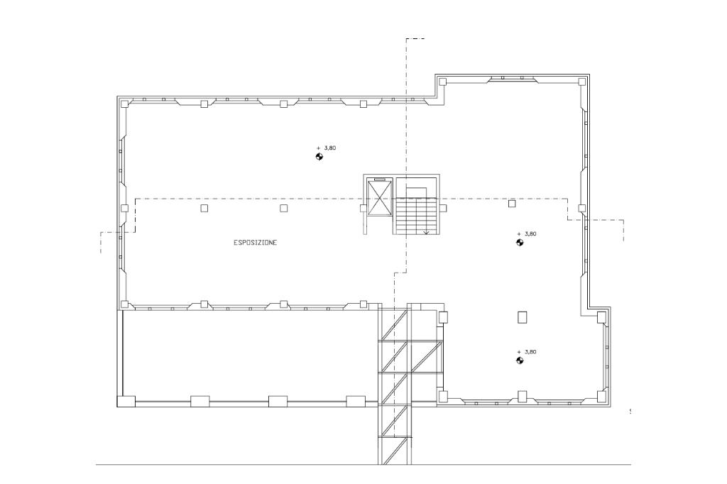
Capannone Industriale a Campo Ligure

VENDESI CAPANNONE A CAMPO LIGURE.

Proponiamo in vendita un capannone di 800 mq in posizione logistica Strategica,inserito in un contesto altamente funzionale per imprese che necessitano di efficienza operativa, facilità di accesso e connessioni rapide.


L’immobile è dotato di ampio spazio esterno che consente agevoli manovre anche a mezzi pesanti e bilici, rappresentando una soluzione ideale per attività produttive, logistiche e di stoccaggio.


Caratteristiche principali

• Superficie coperta di 800 mq, razionale e facilmente modulabile

• Area esterna di pertinenza per carico/scarico e movimentazione merci

• Accesso bilici, elemento distintivo e di elevato valore operativo

• Uscita autostradale di Masone nelle immediate vicinanze, per collegamenti rapidi con Genova e il basso Piemonte

• Stazione ferroviaria a breve distanza, con accesso diretto tramite sottopasso a pochi metri dal capannone.

Una soluzione versatile per l’impresa

L’immobile si presta in modo ottimale a industrie, attività di stoccaggio, logistica, deposito, lavorazioni artigianali e altre soluzioni imprenditoriali, grazie alla combinazione di spazi funzionali, accessibilità multimodale e posizione strategica.

CONTATTACI PER FISSARE UN APPUNTAMENTO DI VISITA IN LOCO: 3275250531/0109914188

Mostra tutto

Nelle vicinanze

Trasporto pubblico Trasporto pubblico
Trasporto pubblico
170 m
Campo Ligure-Masone
Campo Ligure-Masone
160 m
Scuole Scuole
Istituto Comprensivo Valle Stura
1,2 Km
Farmacia Farmacia
Farmacia del Borgo
910 m
Farmacia
3,0 Km
Supermercati Supermercati
Gulliver
220 m
Negozi Negozi
Panificio Dal Pio
760 m
Al castello
790 m
La Spiga
820 m
Rizzo
920 m
Bar Bar
Bar Stazione
190 m
Associazione Combattenti e Reduci
740 m
Pasticceria Giulia
790 m
Bar Moderno
840 m
Bar Europa
1,2 Km
Ristoranti Ristoranti
Taverna del Falco
50 m
Caccia Ca Bugge
750 m
Pizzeria Fregugge
770 m
Vigo's
980 m
Mostra tutto

Caratteristiche

Rif.:
61174473
Piano:
Terra di 2
Totale piani:
2
Posti auto:
15
Condizionamento:
Assente
Ascensore:
No
Mostra tutto
Prezzo Prezzo
€ 650.000
Rata mutuo Rata mutuo
€ 3.073 / mese
Proponi il tuo prezzoProponi il tuo prezzo

Altre caratteristiche

Classe Energetica

G
G
G
G
G
G
G
G
G
Anno di costruzione:
1950
Riscaldamento:
Assente

Prezzo ridotto di €1 (19%%)

Ti interessa visionare l'immobile?

Fissa un appuntamento  Fissa un appuntamento

Richiedi informazioni

Clicca su Leggi per aprire l'informativa
* Questi campi sono obbligatori

Calcola il tuo mutuo

Semplice e senza impegno
Anticipo

( % )
Mutuo

( % )

pochi semplici passi

inserisci i tuoi dati
Questionario completato
Grazie per aver richiesto un appuntamento senza impegno con un nostro Consulente del Credito e Assicurativo.

Hai inserito correttamente tutti i dati necessari e a breve riceverai una e-mail con un link da convalidare per inviare i tuoi dati.
Affiliato
Immobiliare Impresa Snc
Lung. Di Pegli, 177/179 R 16121 Genova (GE)

Il nostro staff


  • Gabriele Abbate
    Collaboratore

  • Fabio Guidetti
    Collaboratore

  • Luca Malachina
    Collaboratore

  • Anna Aquaroli
    Coordinatrice

  • Mattia Santoro
    Affiliato
Lung. Di Pegli, 177/179 R 16121 Genova (GE)
Zona: Lungomare di Pegli
Mostra su mappa
Orari: Dal lunedì al venerdì dalle 08:30 alle 12:30 e dalle 15:00 alle 20:00 e sabato dalle 9:00 alle 12:30 e dalle 15:00 alle 18:00
Affiliato
Immobiliare Impresa Snc
Lung. Di Pegli, 177/179 R 16121 Genova (GE)

2026 Tecnocasa Franchising S.p.A. - P. IVA 08365160152 - Via Monte Bianco 60/A 20089 Rozzano (MI). Ogni agenzia ha un proprio titolare ed è autonoma. Privacy policy | Policy utilizzo | Cookie policy